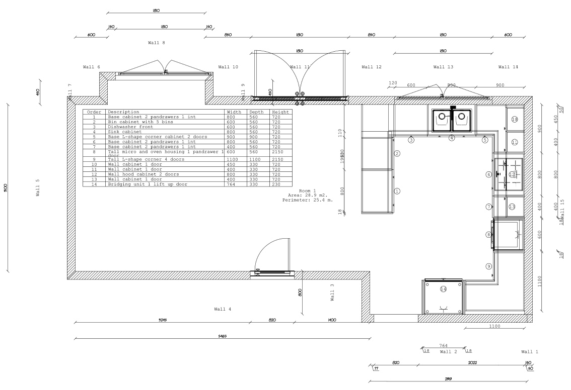
Cabinetry and Accessories
The following materials and accessories have been specified for the cabinetry.
Fronts, Panels, Plinth, and Carcasses
The following finish applies to door and drawer fronts, panels, fillers, and plinth.
Egger Agave Green MFC U645 ST9
Egger U645 ST9 Agave Green – a sophisticated muted green with a matt finish. Perfect for calming, modern interiors with a natural edge.-
The following finish applies to wall unit fronts and filler. This finish will also be used for carcasses and shelves.
Egger H3157 Vicenza Oak Decor Board
H3157 Vicenza Oak is an elegant oak with a natural linear grain, which allows it to be an oak alternative in timeless designs. The discreet colour play and the slight grey content give the decor a modern appearance. In addition, ST12 Omnipore Matt provides the decor with even more naturalness.
-
Accessories
Accessories cover internal cabinetry such as bins and pull-outs, as well as handles.
This will be the pull-out bin in the 500mm wide base unit that will be next to the dishwasher.
Blum LEGRABOX ECO Base for 600mm Cabinet – Carbon Black
Integrated waste bin system for 600mm cabinets. Blum LEGRABOX ECO Base in carbon black – soft-close, odour-free, and built for modern sustainable kitchens.-
This will be the bin within the sink unit.
Ninka easyWaste 32L Base Mounted Bin
Streamline your kitchen waste with the Ninka EasyWaste 32L base-mounted bin. Soft-close, German-made quality with dual compartments—ideal for sustainable, space-efficient living.-
Furnipart Plato Round Flat Knob Handle - Brushed Brass
Add timeless elegance with the Plato brushed brass handle. Modern lines meet classic warmth—ideal for contemporary and shaker-style kitchens alike.-
Warranties
Cabinetry
Egger Residential use: Typically covered by a 25-year warranty. Some product lines may offer up to 30 years, depending on the specific decor or finish.
A six-year warranty is given by Sustique's manufacturing partner that covers manufacturing defects for all fronts, carcasses, and panels.
Mechanisms
Drawer runners, hinges, and pull-outs carry manufacturer lifetime warranties against manufacturing defects. These will exclude wear and tear, or misuse.
Handles
Furnipart give a lifetime warranty on their handles.
Sink and Tap
Sink and tap decisions still need to be made, but the following Blanco and Franke combinations are offered as options.
Franke Option
Franke Maris MRX 220/120-34-34 SS Sink 127.0637.541
Elegant double-bowl stainless steel sink with slim-top design and 50-year Franke guarantee — style, function, and durability in perfect balance.-
Franke Atlas Neo Mixer Tap with Pull Out Nozzle - Gold
Franke Atlas Neo gold mixer tap with pull-out nozzle – a sleek, modern swivel spout tap with precision control and durable finish. Perfect for contemporary kitchens.-
AEG Appliances - Suggested
AEG strikes a confident balance between innovation, energy efficiency, and stylish design. It’s a smart choice for those seeking performance-driven appliances with a lower lifetime environmental impact—all at a more accessible price point than luxury brands. Many AEG products are made in Europe and backed by a respected manufacturer with clear sustainability commitments.
The following appliances with budget limitations as a key driver.
AEG 3000 AirFry Aqua Clean Built-in Oven BEX535A61M
The AEG BEX535A61M 3000 Series AirFry Aqua Clean Oven is designed to make everyday cooking easier and healthier.
-
AEG KMX365060M 3000 Series Combi Microwave and Built-in Oven
The AEG KMX365060M 3000 Series Combi Microwave and Built-in Oven brings the convenience of two appliances in one compact design.
-
AEG 6000 Hob2Hood Cooker Hood 80 cm EcoLine
AEG DGE5861HM2 EcoLine integrated cooker hood, 80 cm wide with Hob2Hood, 700 m³/h extraction, LED lighting, and 5-year warranty. Quiet, efficient, and discreet.-
AEG 6000 Series Bridging Induction Hob – TO64IB00FB
AEG 6000 Series Bridge Induction Hob – flexible cooking zones, smart hood control, and rapid PowerBoost heat. Stylish, efficient, and precise.-
Siemens iQ300 Free-standing 70cm Fridge-freezer KG49NXXCF
Siemens KG49NXXCF iQ300 fridge freezer, 438L capacity, HyperFresh drawers, NoFrost, black inox finish, and 2-year warranty. Stylish, practical cooling.-
AEG Warranty
As an AEG Premier Partner, Sustique provides a standard 5-year warranty on virtually all AEG appliances. There are exceptions, and we inform customers where exceptions may occur. We also register warranties on behalf of customers.
Siemens Warranty
The standard Siemenswarranty applies. Promotions may extend the warranty term.
Worktops and Upstands - Yet to be confirmed
As part of this kitchen design, we've specified compact laminate as the worktop material. It's been selected due to the need to keep within a challenging overall budget, while still delivering a practical and visually appealing solution.
The desired worktop option is Porecelain, but this is a budget stretch.
Compact laminate is a durable, high-density material made from multiple layers of paper impregnated with resin, compressed under high pressure. It offers a sleek, modern appearance with a thin profile and often comes in matt, stone-effect, or woodgrain finishes.
Benefits:
Water-resistant and durable, making it suitable for kitchen environments.
Non-porous surface that’s easy to clean and hygienic.
Resistant to impact, scratches, and general wear - but good care is essential for long-term appearance.
Allows for undermount sinks and drainage grooves, unlike standard laminate.
Limitations:
While durable, it doesn’t match the premium feel or long-term resilience of materials like wood, granite, and porcelain/ceramic.
Visible edge seams and limited repairability in case of damage.
Heat resistance is good, but trivets are essential to protect the surface from very hot items.
Compact laminate is included in this design as a considered compromise—balancing functionality and style within the constraints of the project budget. Should the budget allow in future, this can be revisited and upgraded to a longer-life surface.
Formica Ice Quarstone Compact Laminate F5212
Formica Aria Ice Quarstone F5212 is a durable compact laminate worktop with a light stone-effect finish—ideal for modern, water-resistant kitchen design.-
Formica Polar White Monolith Compact Laminate F2255ML
Formica Aria Polar White F2255ML is a matt compact laminate worktop offering a sleek, stone-like durable white surface ideal for contemporary kitchen design.-
Formica Polar White Compact Laminate F2255
Formica Aria Polar White F2255 is a sleek, compact laminate worktop offering durability, water resistance, and a modern white stone effect finish.-
Why Formica Aria?
Aria is a UK-made compact laminate worktop offering good durability, modern design, and a lower carbon footprint than imported alternatives. Made without MDF or particleboard, it’s a good choice for indoor air quality, and its long lifespan supports sustainable design goals. It meets European E1 and CARB Phase 2 standards for formaldehyde emissions, it’s manufactured in an ISO 14001-certified site focused on environmental impact reduction.
Aria is also made in 3.6M lengths which means two lengths rather than three will be required. This reduces the amount of excess material.
Warranty
Formica Aria compact laminate worktops come with a 10-year limited manufacturer’s warranty in the UK.
Covers manufacturing defects in materials or workmanship under normal use.
Applies to interior use only (typically kitchens, utility rooms, bathrooms).
Warranty is valid from the date of purchase and non-transferable.
Installation must follow Formica’s fabrication and fitting guidelines to remain valid.
Excludes damage from misuse, poor installation, impact, heat, or unapproved cleaners.