Skip to main content

Updated Design

The following design changes have been applied to V4.

Key changes to note:

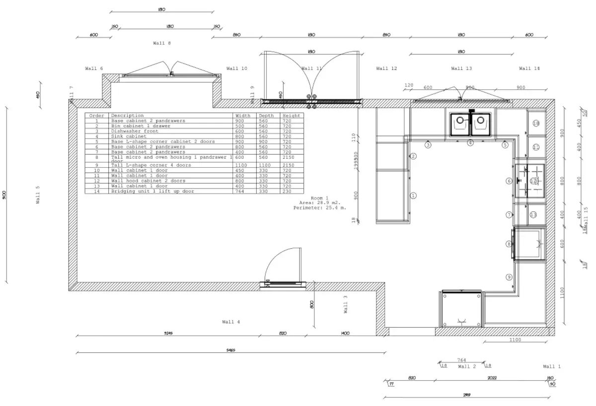
  1. The integrated 70cm fridge freezer has been retained. The space around the appliance has been reduced as access to the side pull handle is enabled by the door being proud of the cabinetry by about 20mm.
  2. The tall larder size has been amended to 1100mm wide.
  3. The handles for the larder unit doors have been positioned to give optimum leverage to open the braced doors.
  4. The drawer numbered 7 on the layout has been returned to a 400mm wide unit.
  5. The wall unit numbered 13 on the layout has been returned to 400mm wide.
  6. A single lift-up door has replaced the two doors for the unit above the fridge freezer.
  7. Wall unit numbered 10 has been increased to 450mm wide.
  8. Wall unit numbered 11 has been reduced to 400mm. This means wall units 11 - 13 have the same door widths.
holybourne kitchen design illustration V4.1 sustique engineered range agave green and vicenza oak

Illustration - Kitchen Design V4.1

holybourne kitchen design illustration showing tall corner larder and enclosed 70cm wide freestanding fridge freezer

Illustration - Tall Larder and enclosed freestanding Fridge Freezer

holybourne kitchen design illustration from kitchen window perspective

Illustration - Perspective from sink window

holybourne kitchen design illustration V4.1 showing sustique engineered cabinetry in agave green and vicenza oak

Illustration - Hob and pan drawer units

kitchen design illustration showing peninsula configuration

Illustration - Pensinsula configuration

kitchen design illustration showing sink and tap in front of window

Illustration - Facing window

holybourne kitchen design illustration from peninsula

Illustration - from patio doors

holybourne kitchen design V4.1 layout

V4.1 Kitchen Layout

Cabinetry and Accessories

The following materials and accessories have been specified for the cabinetry.

Fronts, Panels, Plinth, and Carcasses

The following finish applies to door and drawer fronts, panels, fillers, and plinth.

The following finish applies to wall unit fronts and filler. This finish will also be used for carcasses and shelves.

Accessories

Accessories cover internal cabinetry such as bins and pull-outs, as well as handles.

This will be the pull-out bin in the 500mm wide base unit that will be next to the dishwasher.

This will be the bin within the sink unit.

Warranties

Cabinetry

Egger Residential use: Typically covered by a 25-year warranty. Some product lines may offer up to 30 years, depending on the specific decor or finish.

A six-year warranty is given by Sustique's manufacturing partner that covers manufacturing defects for all fronts, carcasses, and panels.

Mechanisms

Drawer runners, hinges, and pull-outs carry manufacturer lifetime warranties against manufacturing defects. These will exclude wear and tear, or misuse.

Handles

Furnipart give a lifetime warranty on their handles.

 

Sink and Tap

Sink and tap decisions still need to be made, but the following Blanco and Franke combinations are offered as options.

Franke Option

Blanco Option

AEG Appliances - Suggested

AEG strikes a confident balance between innovation, energy efficiency, and stylish design. It’s a smart choice for those seeking performance-driven appliances with a lower lifetime environmental impact—all at a more accessible price point than luxury brands. Many AEG products are made in Europe and backed by a respected manufacturer with clear sustainability commitments.

The following appliances with budget limitations as a key driver.

AEG Warranty

As an AEG Premier Partner, Sustique provides a standard 5-year warranty on virtually all AEG appliances. There are exceptions, and we inform customers where exceptions may occur. We also register warranties on behalf of customers.

Siemens Warranty

The standard Siemenswarranty applies. Promotions may extend the warranty term.

Worktops and Upstands - Yet to be confirmed

As part of this kitchen design, we've specified compact laminate as the worktop material. It's been selected due to the need to keep within a challenging overall budget, while still delivering a practical and visually appealing solution.

The desired worktop option is Porecelain, but this is a budget stretch.

Compact laminate is a durable, high-density material made from multiple layers of paper impregnated with resin, compressed under high pressure. It offers a sleek, modern appearance with a thin profile and often comes in matt, stone-effect, or woodgrain finishes.

Benefits:

  • Water-resistant and durable, making it suitable for kitchen environments.

  • Non-porous surface that’s easy to clean and hygienic.

  • Resistant to impact, scratches, and general wear - but good care is essential for long-term appearance.

  • Allows for undermount sinks and drainage grooves, unlike standard laminate.

Limitations:

  • While durable, it doesn’t match the premium feel or long-term resilience of materials like wood, granite, and porcelain/ceramic.

  • Visible edge seams and limited repairability in case of damage.

  • Heat resistance is good, but trivets are essential to protect the surface from very hot items.

Compact laminate is included in this design as a considered compromise—balancing functionality and style within the constraints of the project budget. Should the budget allow in future, this can be revisited and upgraded to a longer-life surface.

Why Formica Aria?

Aria is a UK-made compact laminate worktop offering good durability, modern design, and a lower carbon footprint than imported alternatives. Made without MDF or particleboard, it’s a good choice for indoor air quality, and its long lifespan supports sustainable design goals. It meets European E1 and CARB Phase 2 standards for formaldehyde emissions, it’s manufactured in an ISO 14001-certified site focused on environmental impact reduction.

Aria is also made in 3.6M lengths which means two lengths rather than three will be required. This reduces the amount of excess material. 

Warranty

Formica Aria compact laminate worktops come with a 10-year limited manufacturer’s warranty in the UK.

  • Covers manufacturing defects in materials or workmanship under normal use.

  • Applies to interior use only (typically kitchens, utility rooms, bathrooms).

  • Warranty is valid from the date of purchase and non-transferable.

  • Installation must follow Formica’s fabrication and fitting guidelines to remain valid.

  • Excludes damage from misuse, poor installation, impact, heat, or unapproved cleaners.

Space Type

Style

Materials

x

User Access

This is where you can login to your account. 

When you have an account and are logged in you will be able to manage your account, view and comment on content specific to your project, and add comments to blog posts and news articles.