Updated Design
The following design content follows the last design meeting.
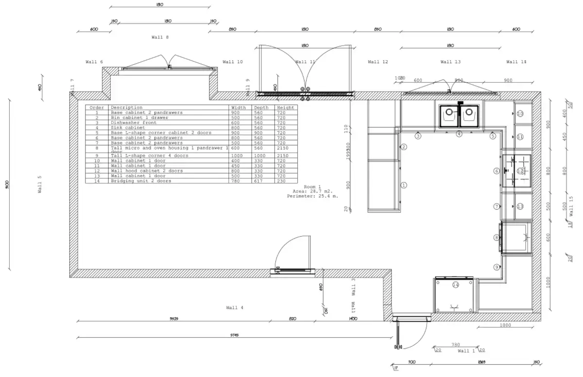
Key changes to note:
- The integrated fridge freezer has been replaced by a 70cm wide free-standing fridge freezer. Despite the wall length being greater than that used in the previous version of the layout, it will not be possible to accommodate the increased width of the fridge freezer without reducing the width of the tall larder unit.
- The tall larder size has been amended to accommodate the dimensions required for the 70cm fridge freezer. The reduced width of the larder means a further 100mm becomes available for other units. The larder unit will be configured with L-shaped shelves to a depth of 330mm.
- The hob unit has been amended. It is now 800mm wide, and has two pan-drawers, with an internal drawer.
- The drawer unit to the right of the hob, unit 7, has been increased from a width of 400mm to 500mm. This has also been reconfigured to two pan-drawers, with an internal drawer. The increased width of this unit absorbs the extra 100mm of space available as a result of having to reduce the width of the larder.
- The pull-out corner unit has been removed.
- The pull-out bin unit has been relocated to the corner of the peninsula, nearest to the dishwasher. This changed the space available to the left of the unit.
- A 900mm wide two pan-drawer unit has replaced the space previously occupied by the drawer unit and bin unit. The new 900mm wide pan-drawer unit also includes an internal drawer.
- The bar has been removed from the design.
- The profile handles for the larder doors now show round knobs. This is feasible because the door weights will reduce to the door sizes reducing.
- The extractor wall unit has been increased to 800mm wide, in step with the hob unit.
- The wall unit to the right of the extractor unit has been increased to 500mm wide, in step with the drawer unit below it.
Cabinetry and Accessories
The following materials and accessories have been specified for the cabinetry.
Fronts, Panels, Plinth, and Carcasses
The following finish applies to door and drawer fronts, panels, fillers, and plinth.
Egger Agave Green MFC U645 ST9
Egger U645 ST9 Agave Green – a sophisticated muted green with a matt finish. Perfect for calming, modern interiors with a natural edge.-
The following finish applies to wall unit fronts and filler. This finish will also be used for carcasses and shelves.
Egger H3157 Vicenza Oak Decor Board
H3157 Vicenza Oak is an elegant oak with a natural linear grain, which allows it to be an oak alternative in timeless designs. The discreet colour play and the slight grey content give the decor a modern appearance. In addition, ST12 Omnipore Matt provides the decor with even more naturalness.
-
Accessories
Accessories cover internal cabinetry such as bins and pull-outs, as well as handles.
This will be the pull-out bin in the 500mm wide base unit that will be next to the dishwasher.
Quadbin Pull-out Bin 30kg
Pull-out bin that attaches to the cabinet door. Maximum load capacity of 30kg. Two grey plastic bins.-
This will be the bin within the sink unit.
Ninka easyWaste 32L Base Mounted Bin
Streamline your kitchen waste with the Ninka EasyWaste 32L base-mounted bin. Soft-close, German-made quality with dual compartments—ideal for sustainable, space-efficient living.-
Furnipart Plato Round Flat Knob Handle - Brushed Brass
Add timeless elegance with the Plato brushed brass handle. Modern lines meet classic warmth—ideal for contemporary and shaker-style kitchens alike.-
Warranties
Cabinetry
Egger Residential use: Typically covered by a 25-year warranty. Some product lines may offer up to 30 years, depending on the specific decor or finish.
A six-year warranty is given by Sustique's manufacturing partner that covers manufacturing defects for all fronts, carcasses, and panels.
Mechanisms
Drawer runners, hinges, and pull-outs carry manufacturer lifetime warranties against manufacturing defects. These will exclude wear and tear, or misuse.
Handles
Furnipart give a lifetime warranty on their handles.
Sink and Tap
Sink and tap decisions still need to be made, but the following Blanco and Franke combinations are offered as options.
Franke Option
Franke Mythos 2-Bowl Stainless Steel Sink
Discover the Franke Mythos MYX 120-34-34 undermount sink – a stylish double-bowl design in brushed stainless steel with hygienic overflow and 50-year guarantee.-
Franke Atlas Neo Mixer Tap with Pull Out Nozzle - Gold
Franke Atlas Neo gold mixer tap with pull-out nozzle – a sleek, modern swivel spout tap with precision control and durable finish. Perfect for contemporary kitchens.-
Blanco Option
Blanco Andano 340/340-U Stainless Steel Sink
BLANCO ANDANO 340/340-U stainless steel undermount sink with twin bowls, InFino drain, and optional accessories. Durable design with a 25-year warranty.-
BLanco Linus-S Single Lever Mixer Tap
BLANCO LINUS-S satin gold kitchen tap with high spout, pull-out spray, and 5-year warranty. Stylish, practical, and built to last.-
AEG Appliances - Suggested
AEG strikes a confident balance between innovation, energy efficiency, and stylish design. It’s a smart choice for those seeking performance-driven appliances with a lower lifetime environmental impact—all at a more accessible price point than luxury brands. Many AEG products are made in Europe and backed by a respected manufacturer with clear sustainability commitments.
The following appliances with budget limitations as a key driver.
AEG 3000 AirFry Aqua Clean Built-in Oven BEX535A61M
The AEG BEX535A61M 3000 Series AirFry Aqua Clean Oven is designed to make everyday cooking easier and healthier.
-
AEG KMX365060M 3000 Series Combi Microwave and Built-in Oven
The AEG KMX365060M 3000 Series Combi Microwave and Built-in Oven brings the convenience of two appliances in one compact design.
-
AEG 6000 Hob2Hood Cooker Hood 80 cm EcoLine
AEG DGE5861HM2 EcoLine integrated cooker hood, 80 cm wide with Hob2Hood, 700 m³/h extraction, LED lighting, and 5-year warranty. Quiet, efficient, and discreet.-
AEG 7000 SenseBoil Induction Hob 60cm IAX64411CB
AEG 7000 SenseBoil® EcoLine induction hob — precise, energy-efficient cooking with Hob2Hood®, PowerBoost and sleek black design.-
Siemens iQ300 Free-standing 70cm Fridge-freezer KG49NXXCF
Siemens KG49NXXCF iQ300 fridge freezer, 438L capacity, HyperFresh drawers, NoFrost, black inox finish, and 2-year warranty. Stylish, practical cooling.-
AEG Warranty
As an AEG Premier Partner, Sustique provides a standard 5-year warranty on virtually all AEG appliances. There are exceptions, and we inform customers where exceptions may occur. We also register warranties on behalf of customers.
Siemens Warranty
The standard Siemenswarranty applies. Promotions may extend the warranty term.
Worktops and Upstands - Yet to be confirmed
As part of this kitchen design, we've specified compact laminate as the worktop material. It's been selected due to the need to keep within a challenging overall budget, while still delivering a practical and visually appealing solution.
The desired worktop option is Porecelain, but this is a budget stretch.
Compact laminate is a durable, high-density material made from multiple layers of paper impregnated with resin, compressed under high pressure. It offers a sleek, modern appearance with a thin profile and often comes in matt, stone-effect, or woodgrain finishes.
Benefits:
Water-resistant and durable, making it suitable for kitchen environments.
Non-porous surface that’s easy to clean and hygienic.
Resistant to impact, scratches, and general wear - but good care is essential for long-term appearance.
Allows for undermount sinks and drainage grooves, unlike standard laminate.
Limitations:
While durable, it doesn’t match the premium feel or long-term resilience of materials like wood, granite, and porcelain/ceramic.
Visible edge seams and limited repairability in case of damage.
Heat resistance is good, but trivets are essential to protect the surface from very hot items.
Compact laminate is included in this design as a considered compromise—balancing functionality and style within the constraints of the project budget. Should the budget allow in future, this can be revisited and upgraded to a longer-life surface.
Formica Ice Quarstone Compact Laminate F5212
Formica Aria Ice Quarstone F5212 is a durable compact laminate worktop with a light stone-effect finish—ideal for modern, water-resistant kitchen design.-
Formica Polar White Monolith Compact Laminate F2255ML
Formica Aria Polar White F2255ML is a matt compact laminate worktop offering a sleek, stone-like durable white surface ideal for contemporary kitchen design.-
Formica Polar White Compact Laminate F2255
Formica Aria Polar White F2255 is a sleek, compact laminate worktop offering durability, water resistance, and a modern white stone effect finish.-
Why Formica Aria?
Aria is a UK-made compact laminate worktop offering good durability, modern design, and a lower carbon footprint than imported alternatives. Made without MDF or particleboard, it’s a good choice for indoor air quality, and its long lifespan supports sustainable design goals. It meets European E1 and CARB Phase 2 standards for formaldehyde emissions, it’s manufactured in an ISO 14001-certified site focused on environmental impact reduction.
Aria is also made in 3.6M lengths which means two lengths rather than three will be required. This reduces the amount of excess material.
Warranty
Formica Aria compact laminate worktops come with a 10-year limited manufacturer’s warranty in the UK.
Covers manufacturing defects in materials or workmanship under normal use.
Applies to interior use only (typically kitchens, utility rooms, bathrooms).
Warranty is valid from the date of purchase and non-transferable.
Installation must follow Formica’s fabrication and fitting guidelines to remain valid.
Excludes damage from misuse, poor installation, impact, heat, or unapproved cleaners.