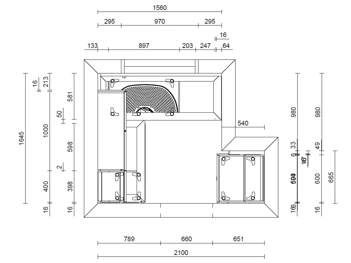
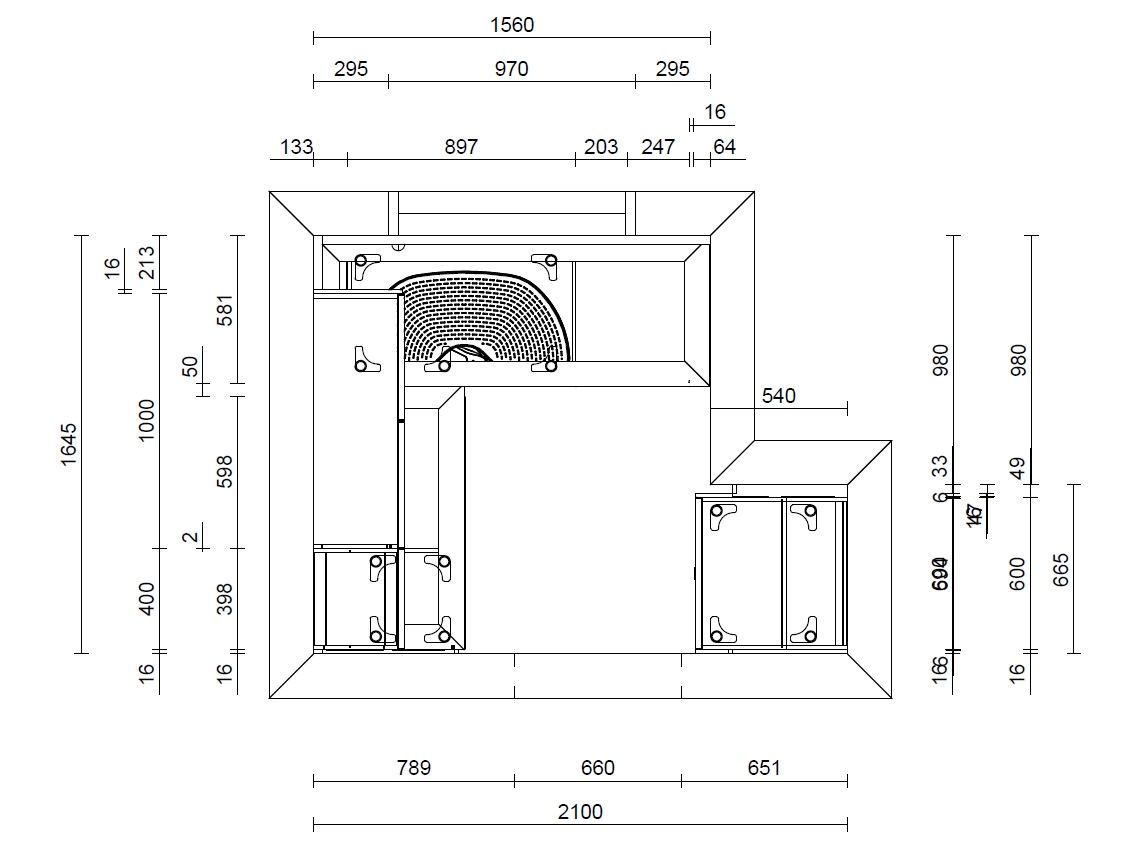
Space Type
Range
Style
Interested in talking about Miinus?
Schedule a FREE design consultation today and let's see how Miinus fits with your project.
Consultations are up to 45 minutes and are conducted via video call using Zoom, Google Meet, or Teams. These are relaxed meetings that are designed to allow you to understand how Miinus fits with you.
